• © ARGE:3000

Projektteam: Christian Uhl, Corinna Studier, Paco Motzer
mit Johanna Bendlin

Jahr: 2021-2024
Ort: Wismar
Grundstücksgröße: 1250 m²
BGF: 415 m²
Leistungsphasen: 1-8
Fachplaner: Guericke Ingenieurgesellschaft (Tragwerksplanung), Marianne Kammel (Energieberatung), jh–ingenieure (Bauphysik)
Bauherrschaft: privat

Das Eigenheim ist für viele Familien ein Sehnsuchtsort. Jedoch muss dieser Traum sowie das geltende Planungsrecht mit der fortschreitenden Klimakrise hinterfragt werden. Dichtere, langlebigere, flexiblere und zugleich lebenswerte Strukturen müssen geplant werden, welche die klimaschädlichen Auswirkungen dieser Bauaufgabe begrenzen. Doch oft verbieten festgesetzte Vorgaben in Bebauungsplänen gerade in Gebieten, in denen der Bau von Einfamilienhäusern politisch forciert wurde, notwendige Anpassungen.

Bei dem Bau des Wohnhauses für drei Generationen+ wird das nicht mehr zeitgemäße Planungsrecht durch die spezifischen Eigenschaften des Grundstücks maximal ausgereizt. Es entsteht ein Wohnhaus für eine fünfköpfige Familie sowie eine Wohnung für eine Rentnerin. Der Entwurf bietet Potenziale zur Nachverdichtung und zeigt eine alternative Sichtweise auf den Bau von Einfamilienhäusern.
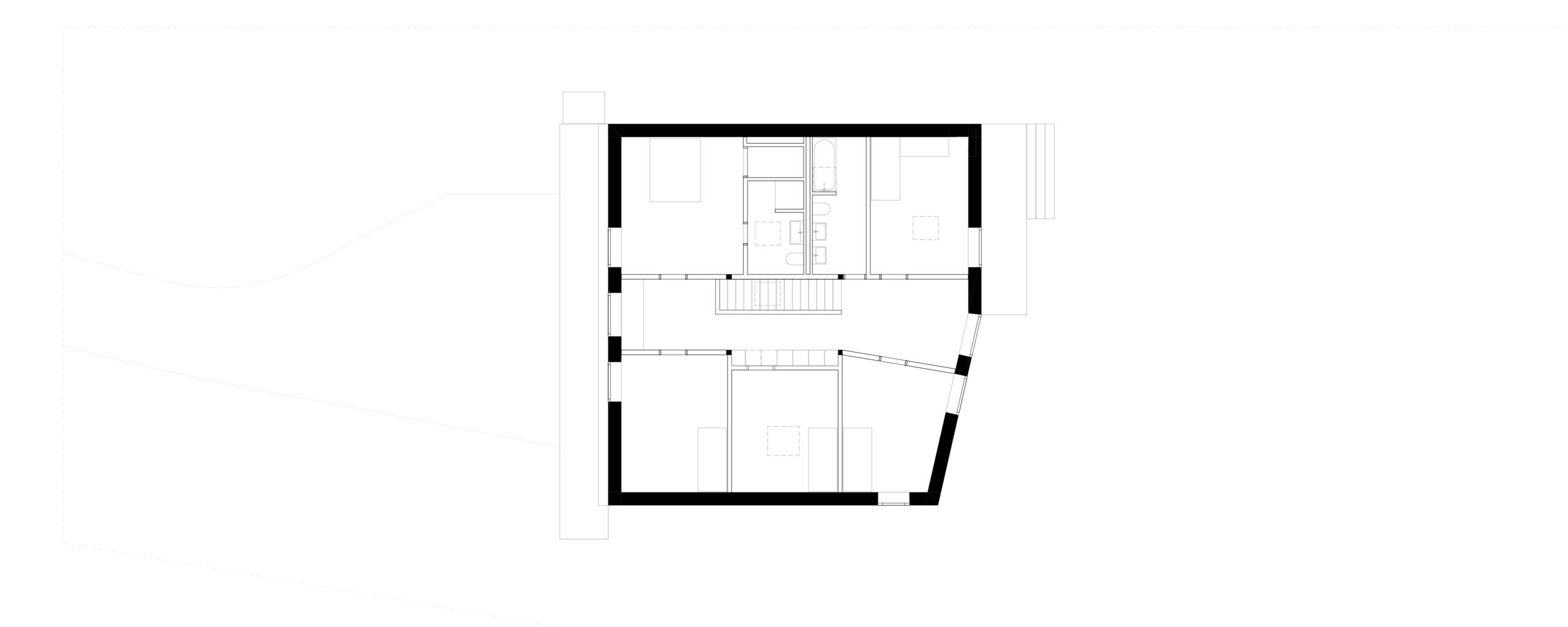
Die beeinträchtigte Tragfähigkeit des Bodens macht einen zwei Metern tiefen Aushub erforderlich, wodurch sich die Planung eines Untergeschosses anbietet. Dieses wird vorerst mit offenen bzw. geschlossenen Garagen und Kellerräumen geplant, könnte jedoch in der Zukunft zu weiterem Wohnraum ausgebaut werden. Der offene Garagenteil dient als überdachter Außenraum, wobei der Übergang zum Garten fließend gestaltet wird. Die langlebige, massive Struktur aus Betonfertigteilen und Poroton-Ziegel bietet die notwendigen bauphysikalischen Voraussetzungen, den Wohnraum flexibel zu unterteilen. Der Treppenraum kann zukünftig umgebaut werden und ermöglicht eine Abtrennung des Obergeschosses und somit eine andere Wohnraumaufteilung. Im Erdgeschoss befinden sich großzügige, lichtdurchflutete Wohnräume. Die Nebenräume werden in der Mittelzone effizient organisiert. Um auch in den kalten Monaten das Sonnenlicht im Wohnraum nutzen zu können, wird die Südfassade im Erdgeschoss großflächig geöffnet. Der davor gelagerte Terrassenbereich dient als Haupterschließungs- und Aufenthaltszone. Sitzbänke im Innen- und Außenbereich schaffen eine erhöhte Aufenthaltsqualität. Die Schlafräume im Dachgeschoss lassen Platz für einen breiten Flur, der den gemeinschaftlichen Raum der Familie erweitert.

Beim Innenausbau wird auf die Kreislauffähigkeit der eingesetzten Materialien geachtet, um beim Umbau Baustoffe wiederzuverwenden oder dem Stoffkreislauf wieder zuzuführen. Die Energieversorgung des Hauses erfolgt über Photovoltaikpaneele, welche die Dachhaut bilden.